PHÁT TRIỂN KHỚP GIÃN NỞ DẠNG UNIVERSAL, DN500 D/P 19bar
1. Bối cảnh & Cơ hội
Trong giai đoạn 2021–2030, Việt Nam sẽ triển khai nhiều dự án lớn về sân bay và kho chứa nhiên liệu như Phú Quốc, Cát Bi, Đà Nẵng và Cam Ranh. Đây là cơ hội quan trọng để NFK củng cố vị thế, đặc biệt khi NFK đã có kinh nghiệm cung cấp sản phẩm cho dự án mở rộng sân bay Nội Bài và sân bay Long Thành.
Thách thức hiện tại: năng lực thiết kế và sản xuất sản phẩm kích thước lớn của NFK mới dừng ở hệ áp 1.0 MPa, chưa có giải pháp và kiểm chứng thực tế cho các hệ áp cao hơn (1.7–1.9 MPa).
- Preparing for packaging
- Packaging
- Arrived at site
2. Mục tiêu dự án
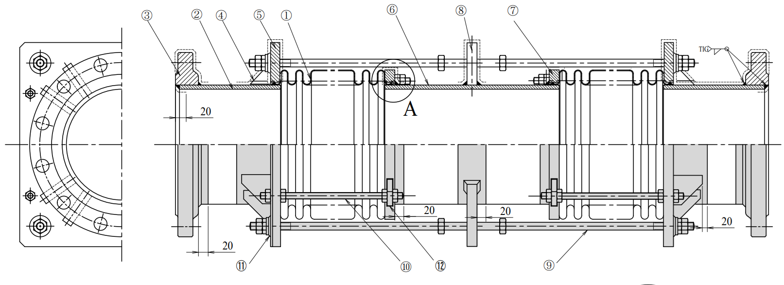
- Phát triển thiết kế cho sản phẩm NK-VN7400 (Universal Type) DN500 với áp thiết kế 19 bar.
- Kiểm chứng năng lực thiết kế và hiệu suất sản phẩm thông qua việc sản xuất mẫu thử.

Reference Photo
3. Kế hoạch triển khai
- Thiết kế chi tiết cấu tạo sản phẩm.
- Sản xuất mẫu thử NK-VN7400 DN500.
- Thử nghiệm khả năng chịu áp: kiểm tra thủy tĩnh để đánh giá khả năng chịu áp 19 bar của sản phẩm.
- Thử nghiệm công năng hoạt động: mô phỏng hoạt động của sản phẩm trong hệ thống và đánh giá tuổi thọ.

Reference Photo
4. Ý nghĩa & Kỳ vọng
- Nội bộ NFK: Củng cố sự tự tin, khẳng định năng lực sản xuất.
- Khách hàng & Đối tác: Chứng minh NFK hoàn toàn đủ khả năng đáp ứng những yêu cầu khắt khe nhất.
- Thị trường: Mở rộng cơ hội tham gia các dự án sân bay, kho chứa và công nghiệp nặng trong tương lai gần.
-
5. Cam kết từ NFK
NFK cam kết đầu tư nghiêm túc vào công nghệ, nhân lực và kiểm soát chất lượng, đảm bảo sản phẩm NK-VN7400 đạt hiệu suất tối ưu, độ bền cao và an toàn tuyệt đối.


