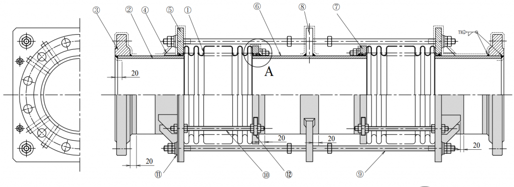
DEVELOP UNIVERSAL TYPE EXPANSION JOINT, DN500 D/P 19bar
1. Context & Opportunity
Between 2021–2030, Vietnam is implementing major projects in airports and fuel storage facilities such as Phu Quoc, Cat Bi, Da Nang, and Cam Ranh. This represents a significant opportunity for NFK to strengthen its position, especially with proven experience supplying products for the Noi Bai Airport expansion and Long Thanh Airport.
The current challenge: NFK’s design and production capacity for large-size products is limited to 1.0 MPa systems, with no verified solutions yet for higher pressures (1.7–1.9 MPa).
- Preparing for packaging
- Packaging
- Arrived at site
2. Project Objectives
- Develop the design for NK-VN7400 (Universal Type) DN500 with a design pressure of 19 bar.
- Verify the design capability and product performance through prototype production.

Reference Photo
3. Implementation Plan
- Detailed product structure design.
- Prototype production of NK-VN7400 DN500.
- Pressure resistance testing: Hydrostatic test to evaluate product’s ability to withstand 19 bar.
- Functional performance testing: Simulate product operation in system and assess service life.

Reference Photo
4. Significance & Expectations
- Internal NFK: Strengthen confidence and affirm production capability.
- Customers & Partners: Demonstrate that NFK can fully meet the most stringent requirements.
- Market: Expand opportunities to participate in future airport, storage, and heavy industry projects.
-
5. Commitment from NFK
NFK is committed to serious investment in technology, human resources, and quality control to ensure that the NK-VN7400 product achieves optimal performance, high durability, and absolute safety.